本日、2026(令和8)年2月26日の午前中にFMいるかさんの中継がありました。
場所は小倉工務店にて造成・分譲を行っております桔梗町の一角、完成間近な平屋のモデルハウスです。
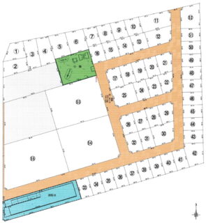
※図中45番の区画です。
中継開始前の事前打ち合わせ風景。
出足は緊張気味の弊社スタッフの図。
中継風景を撮影している風景を撮影してみました。
本物件は近頃人気上昇中の平屋の仕様で、弊社標準仕様の「ダブル断熱」と「トリプルサッシ」を採用し、ZEH(ゼッチ)相当の断熱等級を実現しています。
夏の暑さや冬の寒さから室内を守り、光熱費の節約に一役買うと自負しております。
3月7日から29日までの土日祝に本物件を現地公開致します。
10:00~17:00の間、弊社スタッフが交代で詰めております。
お気軽にお立ち寄りくだされば、ご説明させていただきます。
なお平日においても、事前にお電話やメールにてお問い合わせいただければ、ご指定の日時に見学可能ですので、まずはお連絡をお待ちしております。












